Zamieszkaj pięknie i blisko w Rudzie Śląskiej
Domy w określonych wariantach na wybranych działkach → zapisz się do newslettera i nie przegap startu zapisów.
W naturze i tak blisko miasta.
Centrum miasta
-5 minut samochodem
Szkoły i przedszkola
w promieniu 2 kilometrów
Zakupy
5 minut piechotą
Duże zakupy
5 minut samochodem
Transport publiczny
300 m
Poznaj naszą kolekcję domów od 124 do 265 m² z garażem.
Oto nasza kolekcja domów rodzinnych zaprojektowanych przez wybitnego polskiego architekta, których projektów nie kupisz na rynku. Do dyspozycji masz powierzchnię od 139 do 265 m². Z garażem na jeden, dwa lub trzy samochody.
poznaj najważniejsze zalety naszych domów
-optymalnie ułożony na Twojej działce przez Autora projektu
-wysoki komfort użytkowania niezależnie od wielkości budynku
-bardzo oszczędny system ogrzewania i chłodzenia
-pomieszczenia mieszkalne pełne światła dziennego
-możliwa zmiana funkcji garażu na biuro, mieszkanie itp.
-gotowy do zastosowania funkcji smart home
-taras dostosowany do Twoich potrzeb




Autor projektów dostosowuje układy pomieszczeń do potrzeb mieszkańców.

Pow. 124 m². Kompaktowy dom idealny dla 4-osobowej rodziny. Nowoczesna bryła z czystymi liniami i dużymi przeszkleniami. Parter obejmuje przestronny salon z jadalnią, kuchnię i łazienkę dla gości. Na piętrze znajdują się trzy sypialnie oraz łazienka, zapewniając prywatność i komfort dla całej rodziny.
Napisz do nas, jeśli chcesz zobaczyć autorsko zaprojektowane rzuty parteru i piętra.

Pow. 139 m² z garażem (17 m²) Kompaktowy dom rodzinny idealny dla 4-5 osobowej rodziny. Nowoczesna bryła z czystymi liniami i dużymi przeszkleniami. Dom charakteryzuje się funkcjonalnym rozkładem pomieszczeń na dwóch kondygnacjach. Parter obejmuje przestronny salon z jadalnią, w pełni wyposażoną kuchnię oraz wygodny garaż. Na piętrze znajdują się trzy sypialnie oraz dwie łazienki, zapewniając prywatność i komfort dla całej rodziny.
Kliknij Parter i Piętro.

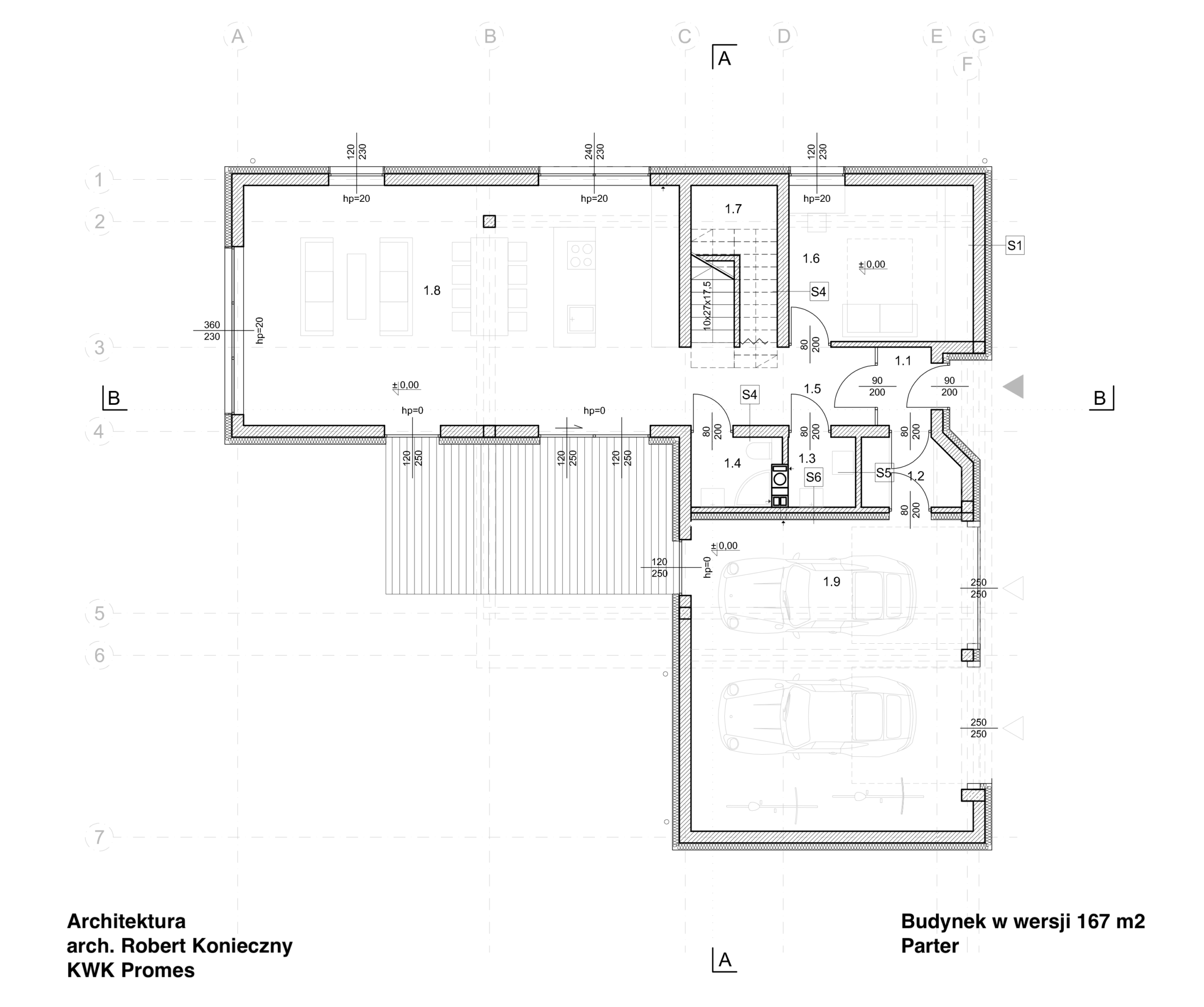
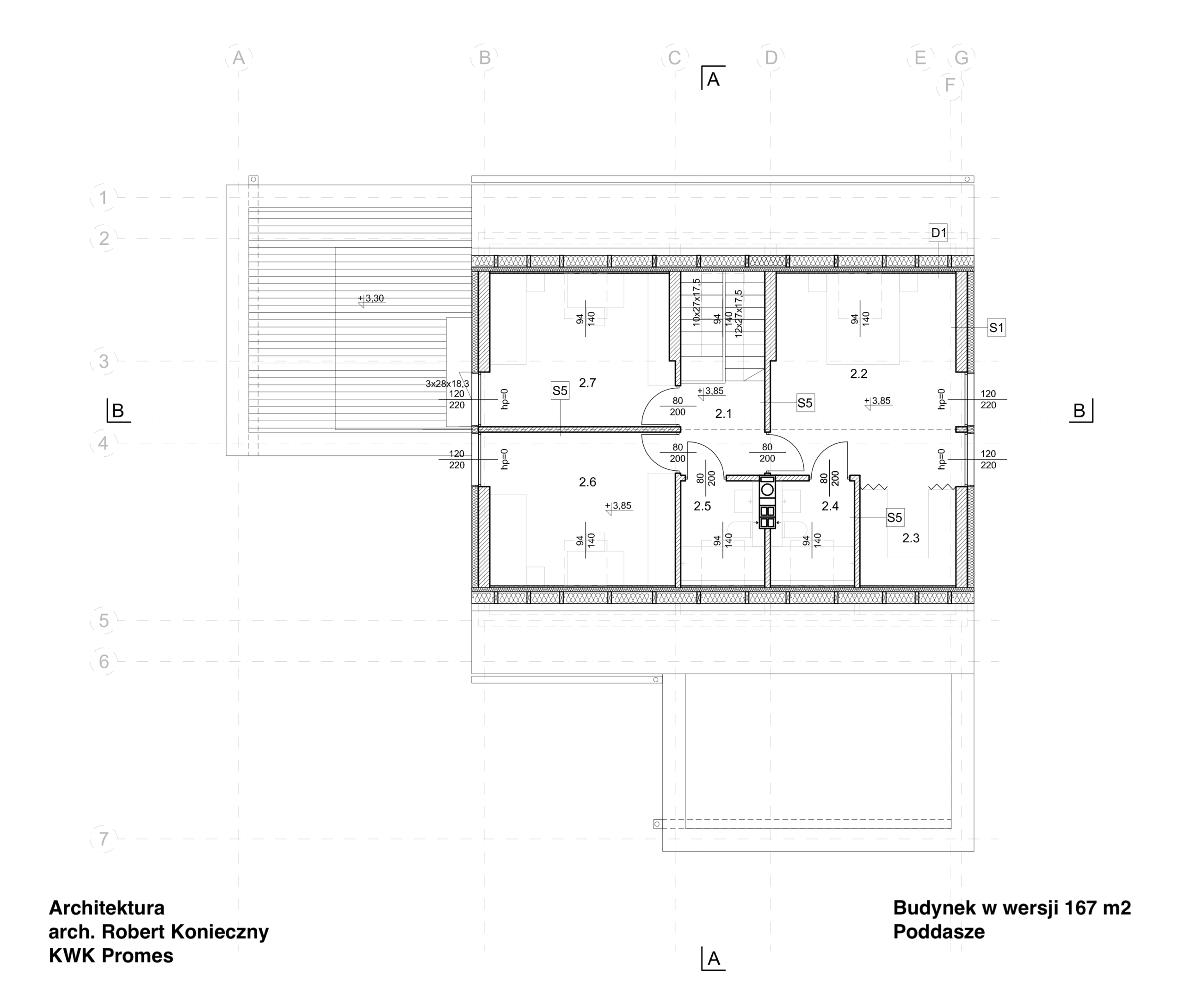
Pow. 167 m² z garażem (39 m²) Przestronny dom z dużym garażem dwustanowiskowym. Doskonale zaprojektowana przestrzeń zewnętrzna idealna do aktywności rodzinnych. Ten model oferuje rozbudowaną strefę dzienną z otwartą kuchnią połączoną z salonem, idealną do wspólnego spędzania czasu. Garaż z bezpośrednim wejściem do domu zwiększa komfort użytkowania. Piętro oferuje cztery przestronne sypialnie oraz dwie nowoczesne łazienki. Dom wyposażony w energooszczędne instalacje.
Kliknij Parter i Piętro.

Pow. od 210 do 265 m² z garażem (53 m²) Bardzo duży dom z przestronnymi wnętrzami. Największe z naszych modeli. Oferują do sześciu sypialni, trzy łazienki oraz dodatkowe pomieszczenie użytkowe. Przestronny garaż na trzy samochody. Salon o wysokości dwóch kondygnacji tworzy imponującą przestrzeń. Możliwość realizacji zielonego dachu – tarasu. Najwyższa jakość materiałów i wykończeń. Napisz do nas, jeśli chcesz zobaczyć układy pomieszczeń domów o powierzchni 210 i 265 m².
Autor projektów
Robert Konieczny to jeden z najbardziej znanych i nagradzanych współczesnych polskich architektów, założyciel pracowni KWK Promes. Zasłynął projektami nowoczesnych, innowacyjnych domów jednorodzinnych, takich jak Dom Aatrialny czy Dom Bezpieczny, które zdobyły liczne nagrody międzynarodowe. Jego twórczość wyróżnia się funkcjonalnością, odważnymi koncepcjami i dostosowaniem architektury do stylu życia użytkowników oraz otoczenia.
Poznaj arch. Roberta Koniecznego w krótkim filmie o jego domu własnym - Arce Koniecznego.
Wybierzesz technologię murowaną,
czy elegancką, zdrową i wyjątkowo trwałą technologię CLT ?
Do wyboru elewacja tradycyjna tynkowa (ETICS) albo elewacja drewniana np. z desek opalanych. Konstrukcja z warstwowych płyt klejonych krzyżowo CLT.
Technologia sprawdzona w 80-metrowym budynku Sara Culture Centre.
13 pięter wykonanych w drewnianej konstrukcji CLT. Nawet główna ogromna klatka schodowa zbudowana została bez użycia betonu.

Technologia CLT to:
– wysoka precyzja wykonania
– bardzo wytrzymała konstrukcja
– doskonałe właściwości cieplne
– komfort i zdrowy mikroklimat
- bardzo dobra akustyka
– bezpieczeństwo pożarowe
– cicha i czysta budowa.
